1- Giới thiệu
Hệ thống tự động hóa cơ điện cho cửa trượt. Phù hợp với tiêu chuẩn EN 16005. Lắp đặt trên tường, trên trần nhà hoặc nhúng- suy luận trong cửa. Chiều cao của hệ thống tự động hóa 155 mm, chiều sâu 130 mm, lá đơn hoặc kép với lối đi mở lên đến 2900 mm và trọng lượng tối đa của lá lên đến 150 kg đối với lá đơn và 120 + 120 kg đối với lá kép. Xếp hạng bảo vệ IPX0. Bộ điều khiển điện tử, Dunker động cơ bánh răng và máy biến áp được nối sẵn dây và gắn sẵn trên một “mô-đun”, cho phép lắp đặt nhanh chóng. Động cơ một chiều, 24 Vdc với bộ mã hóa.
Định mức công suất 250 W. Nguồn điện 220-230V ~ / 110-120V ~, 50 / 60Hz. Bộ điều khiển với màn hình lập trình, hệ thống tự động thiết lập chuyển động và thông số mô-men xoắn, có chức năng tự động điều chỉnh. Tối đa Tốc độ đóng mở 1 m / s, có thể điều chỉnh.
Nhiệt độ hoạt động: -20 ° C đến + 55 ° C. Thời gian tạm dừng có thể lập trình từ 0 đến 60 giây. Tích hợp bộ thu radio kênh đôi (không bao gồm bộ phát). Khóa điện với lá dừng ở mỗi vị trí dừng. Kích thước Confi cho 2 cửa tự động ở chế độ khóa liên động. Mở một phần đoạn văn hữu ích 10 – 70%. Trong trường hợp có chướng ngại vật,cửa sẽ mở lại ngay lập tức và trong lần đóng tiếp theo, nó sẽ kiểm tra ở tốc độ giảm xem chướng ngại vật không còn nữa hay không.
2- Thông số kĩ thuật
| Loại cánh | Cánh trượt |
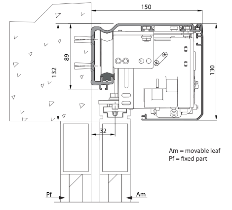
| Kích thước tối đa của cửa D x H x L | 130 x 150 x 6000mm |
| Kích thước tổng thể D x H | 89 mm x 150mm |
| Trọng lượng 1 cánh (bộ 1 cánh) | 150kg |
| Trọng lượng 2 cánh (bộ 2 cánh) | 120+120kg |
| Thông thủy bộ 1 cánh | 750-2150mm |
| Thông thủy bộ 2 cánh | 800-2900mm |
| Tốc độ mở/đóng | Có thể điều chỉnh 1m/1s |
| Tốc độ phanh | 5-10cm/s |
| Phản ứng tác động | Bộ giới hạn momen xoắn điện tử |
| Chu kỳ sử dụng | Liên tục 100% |
| Nhiệt độ hoạt động | -200C đến +500C |
| Mức độ bảo vệ | IPX0 |
| Hệ thống khóa liên động | Khóa liên động 2 cửa |
| Kiểu khóa | Khóa cơ khí |
| Hoạt động thủ công | Có thể đảo ngược |
| Con lăn chống nhảy | Điều chỉnh với bánh xe chống nhảy ở giữa |
| Loại công tắc hành trình | Encoder + dừng cơ khí trong quá trình đóng/mở |
| Loại mô tơ | DUNKER 24v |
| Nguồn cung cấp phụ kiện ngoài | 31,5vdc 0,5A |
| Bộ điều khiển | 24v |
| Option | |
| Điều khiển từ xa | Mitto B RCB02 R1 ( 2 kênh) |
| Pin | 2x12v 1.2Ah |
| Khóa | Khóa ngay cả khi mất điện, nhả bằng tay nhờ công tắc giật dây |
3- Kích thước:
Chi tiết các bộ phận
Tất cả các model đều được trang bị nắp cover bằng nhôm anodized 130 mm.
Chức vụ: giảm tiếng ồn của động cơ và bộ phần truyền động và bộ phận bảo vệ đảm bảo sự yên tĩnh tối đa trong quá trình hoạt động.
Dây đai polyurethane 10 mm có tính năng bịt kín và chống mài mòn cao.


VIDEO BFT








